×
Title
Close
Toggle navigation
Projects
Exploration
About Us
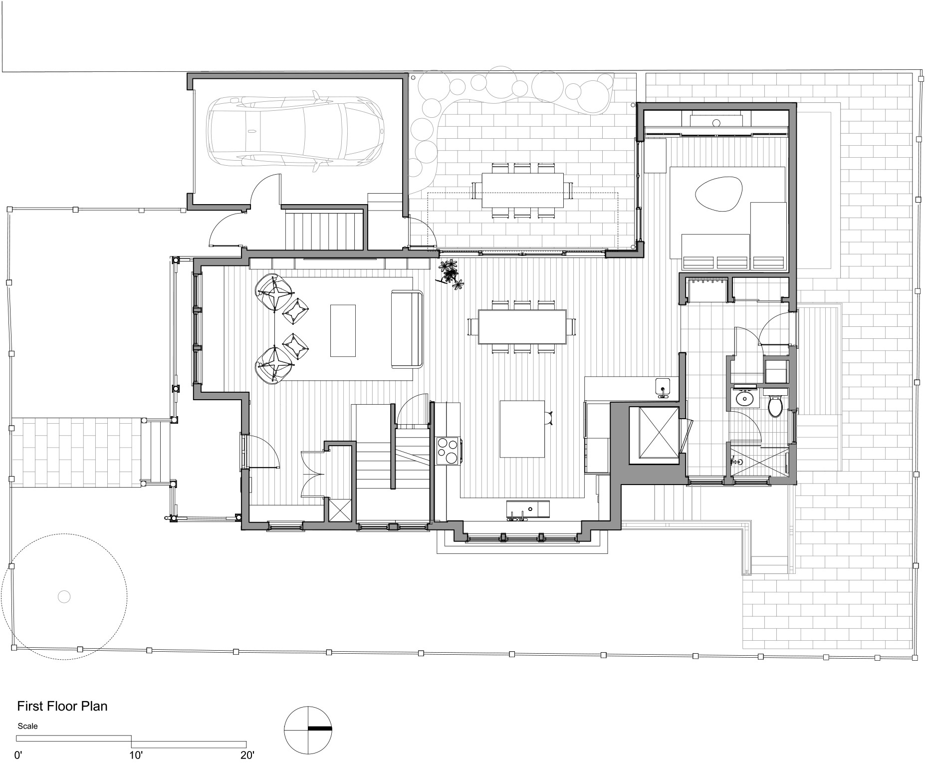
Zen House
Cambridge, MA